[ad_1]

- Área:
240 m²
Ano:
2025
Fabricantes: Terracor, Alex Rocca, Brasil Imperial Ladrilhos, Cerâmica Atlas, Docol, Esmo Metal, Granitorre Fulget Industrial e Comercial, Humberto da Mata, Keramika, Mekal, Michelangelo Mármores do Brasil, Reka Iluminação

Descrição enviada pela equipe de projeto. A relação entre arquitetura e paisagem foi o ponto de partida deste projeto. Trata-se de um apartamento duplex da década de 1980, localizado em um edifício de autoria de Luiz Forte Netto, cujo acesso se dá por uma breve caminhada entre as árvores de um bosque preservado dentro do condomínio.

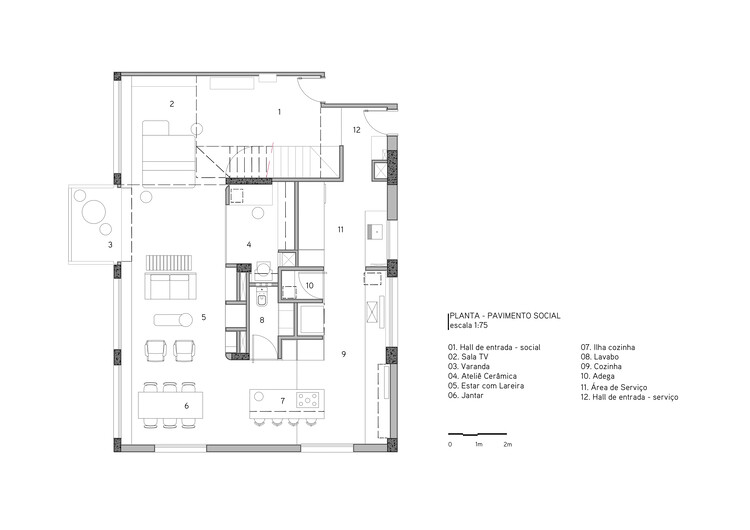
No pavimento social, posicionado na copa das árvores, encontra-se o elemento de destaque do espaço: a araucária em frente à varanda. A proximidade entre edifício e árvore dilui os limites entre interior e exterior, permitindo que o bosque se incorpore à vivência cotidiana do apartamento.


Projeto é intenção, mas também é intuição. A leitura inicial da planta indicava a possibilidade de uma organização em torno de um núcleo central, liberando o perímetro para um percurso contínuo. Esse gesto orienta o redesenho completo do pavimento social, concebido para acompanhar a rotina espontânea do casal.

O layout se estrutura a partir desse núcleo, que concentra os espaços de apoio e serviço, permitindo que a circulação e os ambientes principais se desenvolvam em contato direto com a fachada. O ateliê de cerâmica se integra ao conjunto e se abre para a vista, incorporando a paisagem ao processo criativo. O posicionamento do mobiliário evita dar as costas para o exterior, sempre disposto de forma perpendicular à fachada, enquanto a cozinha, se expande e se conecta à sala, tornando-se o coração da casa.


A araucária assume papel de destaque ao ser enquadrada por uma moldura em aço inox, transformando a paisagem em elemento ativo da composição arquitetônica. O banco em concreto convida à contemplação da vista, reforça a continuidade entre os espaços e assume múltiplos usos.

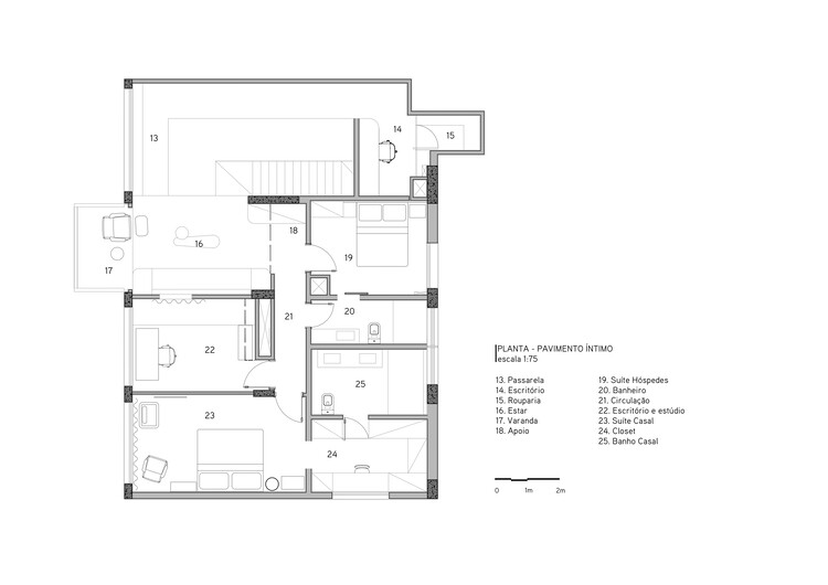
No pavimento íntimo, o mezanino improvisado pelo proprietário anterior foi removido e substituído por uma passarela metálica executada na obra. Dimensionada para atender às exigências estruturais, a passarela adota um desenho esbelto e acabamento em branco, equilibrando resistência e leveza visual. O elemento cria uma promenade até o escritório da cliente, voltado para o pôr do sol, viabilizado após a reorganização dos usos desse pavimento.

A materialidade do projeto se constrói a partir do contraste entre superfícies e cores. O aço inox confere protagonismo a elementos pontuais e foi escolhido não apenas por sua performance, mas também por sua capacidade reflexiva, responsável por conduzir a luz esverdeada do bosque para o interior. Revestimentos e materiais artesanais complementam a paleta, valorizando o fazer manual em sintonia com as referências dos moradores.

Esse contraste se expressa de forma clara no núcleo do pavimento social, com a alteração da materialidade exatamente na posição da antiga parede da cozinha. O gesto preserva a memória da configuração original do apartamento e transforma a antiga divisão em elemento de identidade do projeto.

Entre contrastes e aproximações, a arquitetura se consolida como um espaço que não busca neutralizar o entorno, mas se deixar atravessar por ele. A relação direta com a paisagem, a organização espacial fluida e a materialidade equilibrada constroem um ambiente onde morar é, antes de tudo, uma experiência de permanência e conexão.

[ad_2]
Fonte: Archdaily
