[ad_1]

- Área:
22220 m²
Ano:
2025
Descrição enviada pela equipe de projeto. Em um terreno estreito de cerca de 650 metros quadrados, no bairro de North Park, em San Diego, o projeto FORA é um exercício de densidade inteligente que reinventa o conceito de habitação coletiva contemporânea. Trata-se também de um exemplo concreto do potencial das moradias multifamiliares em áreas de infill urbano nos Estados Unidos — especialmente na Califórnia, onde a crise habitacional e o déficit de moradia seguem como desafios urgentes. Desenvolvido dentro do rigoroso marco regulatório local, o projeto demonstra como pequenos lotes subutilizados no sul da Califórnia podem se transformar em catalisadores de modelos habitacionais mais dignos, sustentáveis e de alta qualidade.





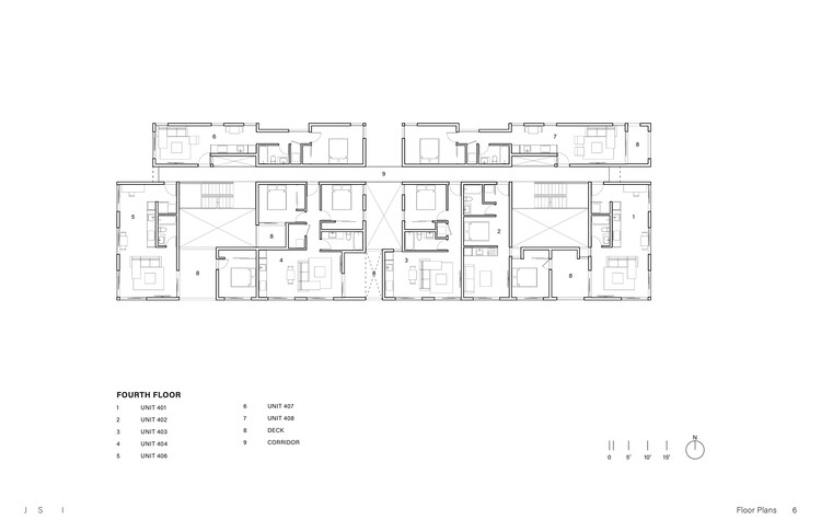
Em vez de preencher o volume, o FORA o esvazia. Em vez de acrescentar massa, a subtrai. Os vazios não apenas organizam o programa, mas também permitem que ele respire. Três pátios internos — dois vinculados à circulação vertical e um concebido como jardim — estruturam a experiência espacial. Longe de serem espaços residuais, esses vazios são elementos ativos: articulam percursos, filtram luz, favorecem a ventilação cruzada e estabelecem uma relação equilibrada entre arquitetura, clima e bem-estar.

Aproveitando o clima ameno de San Diego, o projeto reinterpreta a circulação externa como um sistema aberto de relações entre unidades, vizinhos e espaços compartilhados. Terraços, varandas e passagens semiabertas expandem a esfera doméstica, criando pontos de observação tanto para o interior — o coração do edifício — quanto para o exterior, voltado à vida da rua. Essa porosidade espacial estimula encontros informais e fomenta um senso de comunidade mais flexível, dinâmico e conectado ao cotidiano urbano.

Formalmente, o FORA equilibra ordem e dispersão. A malha contida e rigorosa de janelas contrasta com os recessos e recuos de aparência quase aleatória, conferindo à fachada profundidade, movimento e ritmo. Esse diálogo entre repetição e singularidade permite que o edifício se insira no contexto urbano sem dominar a paisagem, integrando-se de forma natural e discreta ao tecido da cidade.

No interior, os apartamentos seguem uma lógica linear em que as cozinhas se integram ao layout e se abrem à luz natural. Cada unidade adapta-se ao volume disponível para maximizar iluminação, ventilação e aproveitamento espacial. Algumas possuem pé-direito duplo, outras proporções mais alongadas — mas todas compartilham uma organização precisa, que elimina excessos e otimiza cada metro quadrado. A combinação de madeira e estuque confere ao ambiente uma atmosfera cálida e contida, onde nada é supérfluo e cada elemento expressa equilíbrio e cuidado.



Em uma cidade moldada pelo crescimento acelerado e por modelos habitacionais repetitivos, o FORA se afirma como uma resposta arquitetônica precisa e um precedente urbano relevante. O projeto demonstra que intervenções sensíveis, ainda que em pequena escala, podem contribuir de maneira significativa para enfrentar desafios metropolitanos amplos — oferecendo não apenas moradia, mas uma forma de habitar mais aberta, consciente e compartilhada.

[ad_2]
Fonte: Archdaily

